Are you a member? /

CHATILLON (AO) – INDUSTRIAL COMPLEX EX TECDIS

Real estate complex with a production destination situated in the industrial zone of the Municipality of Châtillon (Aosta), in the heart of the Alps, in a strategic position to reach Switzerland and France, close to the main highway, road and railway access routes in the Autonomous Region of Valle d’Aosta and the industrial triangle Turin-Milan-Genoa. The property, subjected to a restoration at the end of the 80s, is completely free both from the production lines, and from the equipment of previous activities.

Viale Stazione / Rue de la Gare, 41 - 11024 CHATILLON (AO)

Details

Permitted uses
Industrial/logistic
Land area (m²)
29,769 m²
Total GIA (m²)
Total GLA
Contracts and limitations

available

Year of construction
1985
State of maintenance and repair
Good
Occupation status
Vacant
Risk profile

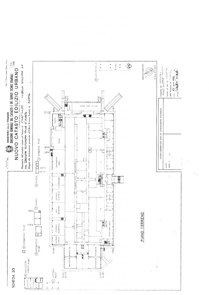
The real estate complex develops a gross pavement surface of 18,300 m² articulated on two levels, realized on an area of 29,769 m², divided in warehouses, laboratories, workshops, offices, services, hygiene services, load/uploading zones, canteen area, changing rooms and technical rooms on the ground floor. The vast external area, partially asphalted and partially destined to green areas with ornamental plants, is fenced and equipped with a lighting implant; the property is equipped with a protection alarm installed in 2012. The authorization to carry out works goes through the obtainment of the permit to build issued by the Single Window of the Local Institutions that gives one rapid answer for the other municipal offices and other public administrations involved in the procedure, including those regarding environmental, landscape, territorial, historical and artistic protection and of public health protection; the procedure can be concluded within 60 days of the presentation of the complete planning documentation. The request will have to follow the urban regulations in force contained in the technical legislation attached to the regulation plans. Planning level: Concept project created by an important professional studio of Architect Maurizio Varratta from Genoa who analyses a possible architectural solution for the use of the area that considers assistance and support of productive activities defined by regional legislation regulations.

The property is situated in the industrial zone of the Municipality of Chatillon (4,654) in the Autonomous Region of Valle d’Aosta, 28 km from the chief administrative centre (Aosta). The municipal territory goes along a vast area on both side of Dora Baltea and the stream Marmore, with on the north monte Zerbion and the south the Barbeston and the Cima Nera. The village is developed at the opening of the Valtournanche, partially on the banks of the stream and partially at the bottom of the valley on which the local church and castle come to be. The Municipality, in recent times, was confirmed as industrial and commercial centre, zone for hydro-electrical centres and agriculture, extraction and tourism centres. It is the office of administration offices, has modern sport centres and a prestigious hospitality school. The railway station situated along the path Aosta-Torino, is 200 metres from the property. The exit “Châtillon/Saint-Vincent” of highway “A-5”, that connects Turin to the tunnel of Monte Bianco, going through Ivrea, is 1.2 km from the zone, while the international airport of Torino Caselle (13th airport with 4.2 million passengers in 2017) is 93 km from the zone.

GROUND FLOOR
8630 m²
BASEMENT
9670 m²
Technical standards implemented

Real estate complex with a production destination situated in the industrial zone of the Municipality of Châtillon (Aosta), in the heart of the Alps, in a strategic position to reach Switzerland and France, close to the main highway, road and railway access routes in the Autonomous Region of Valle d’Aosta and the industrial triangle Turin-Milan-Genoa. The property, subjected to a restoration at the end of the 80s, is completely free both from the production lines, and from the equipment of previous activities.

Procedure

Public Tender Sale of full Ownership

Viale Stazione / Rue de la Gare, 41 - 11024 CHATILLON (AO)

Contact

ICE - Italian Trade Agency

Request info

Floorplan

CHATILLON (AO) – INDUSTRIAL COMPLEX EX TECDIS Floorplan