Siete già iscritti? /

Assisi (PG) – Bandita Piccola

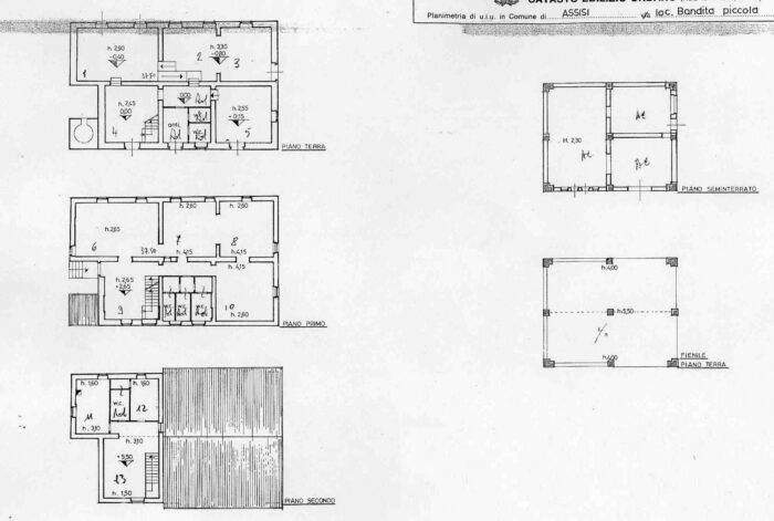
Situato nel suggestivo comune di Assisi, nella frazione di Santa Maria di Lignano, il complesso "Bandita Piccola" comprende un'abitazione principale e un ex fienile.
L'edificio principale, sviluppato su tre livelli per circa 508 m², è stato ristrutturato negli anni '90 rispettando l'architettura rurale tipica in pietra arenaria. Il fienile annesso offre ulteriori 240 m² distribuiti su due piani. La proprietà si inserisce in un tranquillo contesto agricolo di salvaguardia ambientale.

Frazione Santa Maria di Lignano, SNC - 06081 Assisi (PG)

Dettagli

Tipologie immobile
Altre tipologie
Funzioni ammesse
Residenziale, Turistico ricettivo
Superficie territoriale (m²)
2.670 m²
SLP Totale (m²)
Stato manutentivo
Mediocre
Stato occupazionale
Libero

Immersa nella quiete della campagna umbra, la proprietà “Bandita Piccola” rappresenta un’affascinante opportunità immobiliare per chi desidera investire in un rifugio esclusivo o in un’attività ricettiva. Il complesso si articola in due fabbricati distinti, oggetto di ristrutturazione negli anni ’90 ma attualmente necessita di ulteriori interventi di risanamento.
Il fabbricato principale di circa 500 m² si sviluppa su tre livelli, caratterizzato da murature in pietra locale e inserti in mattoni pieni. Gli spazi interni vantano solai tradizionali in legno, uniti da scala in ferro e legno. Nell’immobile sono presenti impianti idrici, elettrici e predisposizione per il riscaldamento con radiatori.
Ad arricchire le potenzialità della proprietà vi è un ex fienile di 240 m² complessivi, distribuiti equamente tra piano terra e seminterrato. Questa struttura, impreziosita da capriate in legno e pilastri in mattoni pieni, è volutamente priva di finiture interne, offrendo così la massima libertà progettuale per creare ampi saloni panoramici, aree relax o dependance annesse.

Il compendio si trova nella frazione di Santa Maria di Lignano, a circa 14 km dal celebre centro storico di Assisi. Inserita in una fascia territoriale tutelata e classificata come zona agricola di salvaguardia ambientale, la proprietà gode di un panorama intatto, tipico delle dolci colline umbre. L’area è raggiungibile percorrendo la pittoresca Strada Regionale 444 fino a Pian della Pieve, per poi inoltrarsi in una suggestiva viabilità locale. Un percorso alternativo è fruibile dalla ex strada statale Flaminia, deviando all’altezza di Nocera Scalo. Questa posizione garantisce totale riservatezza pur restando comodamente collegata ai grandi flussi del turismo culturale.

Abitazione - PIANI FUORI TERRA (3)
508,50 mq
Fienile - PIANO ENTRO TERRA
120,00 mq
Fienile - PIANO TERRA
120,00 mq

Situato nel suggestivo comune di Assisi, nella frazione di Santa Maria di Lignano, il complesso "Bandita Piccola" comprende un'abitazione principale e un ex fienile.
L'edificio principale, sviluppato su tre livelli per circa 508 m², è stato ristrutturato negli anni '90 rispettando l'architettura rurale tipica in pietra arenaria. Il fienile annesso offre ulteriori 240 m² distribuiti su due piani. La proprietà si inserisce in un tranquillo contesto agricolo di salvaguardia ambientale.

Procedure

Vendita della piena proprietà con bando pubblico

Frazione Santa Maria di Lignano, SNC - 06081 Assisi (PG)

Contatto

ICE - Italian Trade Agency

Richiedi informazioni

Pianta principale

Assisi (PG) – Bandita Piccola Pianta principale