Siete già iscritti? /

Assisi (PG) – Canonica

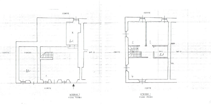
Situato nel Comune di Assisi, in località Santa Maria di Lignano, il complesso immobiliare "Canonica" si compone di tre corpi di fabbrica. L'edificio principale è un grande casale rurale su due livelli (circa 705 m²), interamente ristrutturato negli anni ‘90 e suddiviso in sette miniappartamenti indipendenti. La proprietà include inoltre un ex fienile in stato di rudere (circa 101 m²) e i resti di un terzo fabbricato. Immersa nel verde a 800 metri di altitudine, offre notevoli potenzialità di recupero.

Frazione Santa Maria di Lignano, SNC - 06081 Assisi (PG)

Dettagli

Tipologie immobile
Altre tipologie
Funzioni ammesse
Turistico ricettivo
Superficie territoriale (m²)
6.450 m²
SLP Totale (m²)
Stato manutentivo
Mediocre - Da valorizzare
Stato occupazionale
Libero

Incastonato nel cuore verde dell’Umbria, a circa 800 metri di altitudine, il compendio “Canonica” rappresenta un’affascinante sfida per gli investitori. La proprietà è dominata da un casale di circa 700 m², che una precedente ristrutturazione ha già suddiviso in sette spaziosi miniappartamenti. Ciascuna unità è dotata di impiantistica autonoma (elettrica, idrica e di riscaldamento), ponendo solide basi per l’avvio di una struttura ricettiva.
Sebbene l’edificio principale necessiti di significativi interventi di manutenzione a causa del prolungato inutilizzo, il suo potenziale resta straordinario. A completare questo quadro dal sapore antico, si aggiungono due ulteriori fabbricati: un ex fienile di 101 m² perfetto per creare un’area comune o un ristorante panoramico, e i resti di un terzo fabbricato, ormai integrato con la natura circostante. Le preziose cubature aggiuntive offrono l’opportunità di espandere ulteriormente l’offerta turistica. “Canonica” è l’investimento ideale per chi immagina un rifugio di quiete e spiritualità, lontano dai ritmi urbani ma saldamente ancorato alla tradizione umbra.

Il complesso sorge in una posizione privilegiata e isolata al confine tra i territori di Assisi e Nocera Umbra, in località Santa Maria di Lignano. Situato all’interno di una zona collinare tutelata per la salvaguardia agricola e ambientale, offre un panorama incontaminato e un’assoluta immersione nella natura. Per raggiungere la proprietà, si percorre da Valtopina la strada provinciale 4 (ex Flaminia) fino allo svincolo di Villa di Postignano. Da questo punto, si prosegue per circa 9 km lungo una pittoresca strada vicinale che conduce direttamente al cuore della tenuta, garantendo così un perfetto connubio tra privacy totale e connessione con le principali arterie di comunicazione dell’Umbria.

Miniappartamenti
705,21 mq
Fienile
101,00 mq

Situato nel Comune di Assisi, in località Santa Maria di Lignano, il complesso immobiliare "Canonica" si compone di tre corpi di fabbrica. L'edificio principale è un grande casale rurale su due livelli (circa 705 m²), interamente ristrutturato negli anni ‘90 e suddiviso in sette miniappartamenti indipendenti. La proprietà include inoltre un ex fienile in stato di rudere (circa 101 m²) e i resti di un terzo fabbricato. Immersa nel verde a 800 metri di altitudine, offre notevoli potenzialità di recupero.

Procedure

Vendita della piena proprietà con bando pubblico

Frazione Santa Maria di Lignano, SNC - 06081 Assisi (PG)

Contatto

ICE - Italian Trade Agency

Richiedi informazioni

Pianta principale

Assisi (PG) – Canonica Pianta principale