Siete già iscritti? /

Sermoneta (LT) – Ex Assistenza Sanitaria “La Doganella”

Complesso composta da: Edificio A realizzato dal 1928, muratura in mattoni forati e solai in laterocemento, copertura a falde inclinate con tegole in cotto e prospetti scanditi da aperture regolari e simmetriche dotate di infissi lignei, ingresso principale evidenziato da una pensilina minimale; edificio B destinato a stalla-magazzino e Edificio C, accatastato F/3, oggi non presente sul terreno.

Via Ninfina 10 , 10 - 04013 SERMONETA (LT)

Dettagli

Tipologie immobile
Edificio cielo/terra
Funzioni ammesse
Altre funzioni, Turistico ricettivo
Superficie territoriale (m²)
2.800 m²
SLP Totale (m²)
GLA totale
Anno di costruzione
1930 CA.
Stato manutentivo
Mediocre - Da valorizzare
Stato occupazionale
Libero

La palazzina (edificio A) a pianta quadrata, funzionale e razionale, tipica dal 1928 in poi. Il tetto con tegole in cotto, le murature in mattoni forati, i solai con travetti in calcestruzzo, gli infissi in legno sono coerenti con le esigenze costruttive dell’epoca.
Il magazzino (edificio B) ha una forma rettangolare suddivisa in tre parti. Le due parti di testa sono chiuse e vi si accede attraverso una porta. La parte centrale, seppur coperta, è priva di tamponatura sul lato più lungo.
Il Fabbricato C , seppur risulta accatastato come F/3, nella realtà non è presente sul terreno.
E’ presente vincolo di interesse storico – artistico per l’immobile e l’area Interesse culturale
Gli immobili in oggetto sono soggetti tra le altre alle norme sotto elencate:
D.C.C. n. 20 del 07/04/2009 recante ad oggetto “P.P.E. Variante Speciale ai sensi della L.R. 28/80, Borgata Doganella di Ninfa: adozione”. La L.R. Lazio 14/2006 disciplina agriturismo, turismo rurale e attività multifunzionali.
Finalità: valorizzazione territorio, tutela ambiente, recupero patrimonio rurale, promozione prodotti tipici. Principi: prevalenza agricola, multifunzionalità (agricoltura sociale, enoturismo, olioturismo).

Sermoneta è situata all’interno del territorio della provincia di Latina, a pochi chilometri dalla via Appia ed a circa 60 da Roma, sorge su una collina a 257 metri sul livello del mare, dominando la grande Pianura Pontina. Dal XIII secolo inizia la signoria dei Caetani, con un feudo vastissimo e castello soggiorno per sovrani e pontefici.
Tra i titoli ottenuti dal Comune:
Bandiera Arancione per il turismo dal Touring Club Italiano.
Indicazioni da Roma:
S.S. 148 Pontina, Borgo Piave, S.S. Appia (dx), bivio Epitaffio (sx), Latina Scalo, Sermoneta
Autostrada RM/NA: uscita Valmontone, Artena, Giulianello, Cori, Doganella, Sermoneta
Da Ciampino
S.S. Appia, bivio Epitaffio (sx), Latina Scalo, Sermoneta; oppure Via Nettunense, Campoleone, Cisterna, bivio Epitaffio (sx), Latina Scalo, Sermoneta
Partendo da Napoli – (Frosinone)
dall’Autostrada (uscita Frosinone), S.S. 156 Monti Lepini, Priverno, Sezze Scalo, Sermoneta
Il treno conduce sino a Latina

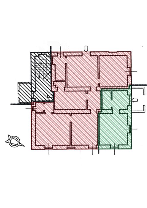
EDIFICIO A - PIANO TERRA EDIFICIO PRINCIPALE RESIDENZIALE
168 m²
EDIFICIO A - PIANO PRIMO EDIFICIO PRINCIPALE RESIDENZIALE
168 m²
EDIFICIOB - PIANO UNICO EDIFICIO MAGAZZINO STALLA
72,90
EDIFICIO C- PIANO UNICO NON PRESENTE MA ACCATASTATO PICCOLO MAGAZZINO
47 m²
NORME TECNC
TAVOLE DI PIANO
TAVOLE DI PIANO
NORME TECNICHE
NORME TECNICHE
NORME TECNICHE
NORME TECNICHE
NORME TECNICHE
NORME TECNICHE
NORME TECNICHE
NORME TECNICHE
NORME TECNICHE
NORME TECNICHE
NORME TECNICHE
NORME TECNICHE
NORME TECNICHE
NORME TECNICHE
NORME TECNICHE

Complesso composta da: Edificio A realizzato dal 1928, muratura in mattoni forati e solai in laterocemento, copertura a falde inclinate con tegole in cotto e prospetti scanditi da aperture regolari e simmetriche dotate di infissi lignei, ingresso principale evidenziato da una pensilina minimale; edificio B destinato a stalla-magazzino e Edificio C, accatastato F/3, oggi non presente sul terreno.

Via Ninfina 10 , 10 - 04013 SERMONETA (LT)

Contatto

ICE - Italian Trade Agency

Richiedi informazioni

Pianta principale

Sermoneta (LT) – Ex Assistenza Sanitaria “La Doganella” Pianta principale