Siete già iscritti? /

Montone (PG) – Rocca D’Aries

Il complesso storico monumentale Rocca d'Aries, fortilizio già esistente intorno all'anno 1000, deve la sua costruzione attuale, per buona parte, alla famiglia Fortebracci che, a partire dal 1376, riedificò il fortilizio antico rendendolo praticamente inespugnabile. Sorge in posizione isolata e dominante su un colle nel comune di Montone e si compone di una possente rocca principale in muratura di pietra sviluppata su quattro livelli, affiancata da una guardiania e da una biglietteria seminterrata con copertura a terrazza.
Restaurato tra il 1994 e il 1995, vanta una superficie lorda complessiva di circa 1.380 m².

Via della Rocca, SNC - 06014 Montone (PG)

Dettagli

Tipologie immobile
Edificio storico
Funzioni ammesse
Altre funzioni
Superficie territoriale (m²)
2.040 m²
SLP Totale (m²)
Stato occupazionale
Libero

Unica nel suo genere, Rocca d’Aries rappresenta una prestigiosa opportunità di investimento nel cuore verde dell’Umbria. Costruita esistente all’anno Mille, questa imponente fortezza in muratura di pietra domina visivamente un’ampia vallata, offrendo un panorama mozzafiato e una privacy assoluta. Grazie al restauro conservativo effettuato tra il 1994 e il 1995, nato originariamente con finalità museali, la rocca si presenta oggi in buone condizioni strutturali. Gli interventi hanno coniugato il fascino dell’antico – preservando le possenti murature, la suggestiva scala a chiocciola nel torrione e uno storico camino – con la funzionalità, dotando la struttura di un nuovo tetto in legno e di impianti termici, elettrici e idrico-sanitari completi. Il complesso vanta un corpo principale di oltre 1.250 m² distribuiti su quattro piani fuori terra, ideale per ospitare eleganti poli culturali o esclusive strutture ricettive e presta magnificamente a trasformarsi in un polo d’attrazione dal fascino intramontabile. Arricchiscono la proprietà una guardiania e una biglietteria seminterrata in cemento armato rivestita in pietra naturale, dotata di un tetto a terrazza praticabile.

Il complesso è situato nel suggestivo territorio della Provincia di Perugia, Comune di Montone. La Rocca sorge in un contesto paesaggistico intatto, ricadente in una zona agricola di salvaguardia ambientale, si trova isolata nella parte più alta di un colle, a circa 8 km a nord rispetto al centro del comune di Montone. Questa posizione panoramica e strategica permette di dominare un’ampia zona che comprende le pittoresche località di Carpini, Bagnolo e San Faustino, estendendosi visivamente verso il borgo di Pietralunga.
L’accessibilità al sito è garantita dalla superstrada E45 (asse Orte – Ravenna), uscendo allo svincolo per Montone – Pietralunga. Il tragitto prosegue poi lungo la strada provinciale 201 in direzione Pietralunga; al chilometro 6,5 circa si svolta a sinistra e, dopo aver superato il ponte sul torrente Carpina, l’ultimo tratto si snoda dapprima su una comoda strada comunale e infine su una suggestiva strada sterrata vicinale che conduce direttamente alle mura della rocca.

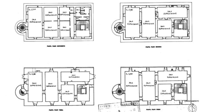
ROCCA D'ARIES - Rocca - PIANO TERRA
314,8875 mq
ROCCA D'ARIES - Rocca - PIANO PRIMO
314,8875 mq
ROCCA D'ARIES - Rocca - PIANO SECONDO
314,8875 mq
ROCCA D'ARIES - Rocca - PIANO TERZO
314,8875 mq
ROCCA D'ARIES - Guardiania - PIANO TERRA
28,00 mq
ROCCA D'ARIES - Biglietteria - PIANO ENTRO TERRA
97,00 mq

Il complesso storico monumentale Rocca d'Aries, fortilizio già esistente intorno all'anno 1000, deve la sua costruzione attuale, per buona parte, alla famiglia Fortebracci che, a partire dal 1376, riedificò il fortilizio antico rendendolo praticamente inespugnabile. Sorge in posizione isolata e dominante su un colle nel comune di Montone e si compone di una possente rocca principale in muratura di pietra sviluppata su quattro livelli, affiancata da una guardiania e da una biglietteria seminterrata con copertura a terrazza.
Restaurato tra il 1994 e il 1995, vanta una superficie lorda complessiva di circa 1.380 m².

Questo immobile fa parte del progetto:

Procedure

Concessione di valorizzazione con bando pubblico

Via della Rocca, SNC - 06014 Montone (PG)

Contatto

ICE - Italian Trade Agency

Richiedi informazioni

Pianta principale

Montone (PG) – Rocca D’Aries Pianta principale