Siete già iscritti? /

Nocera Umbra (PG) – Bandita 1

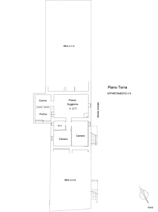
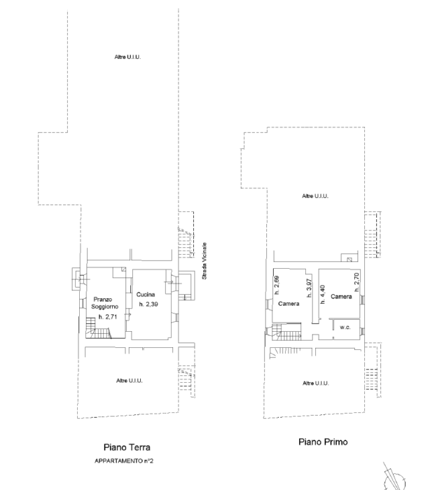
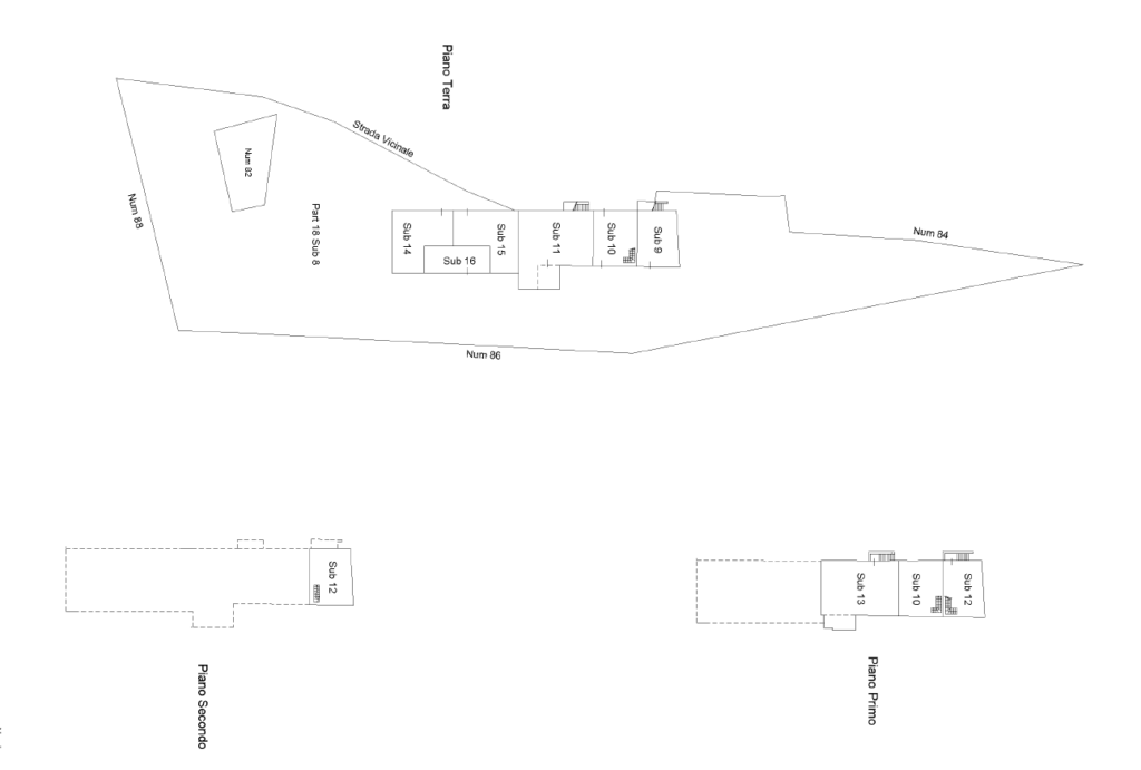
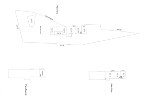
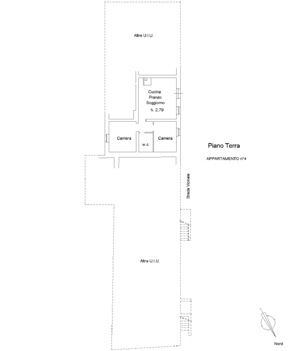
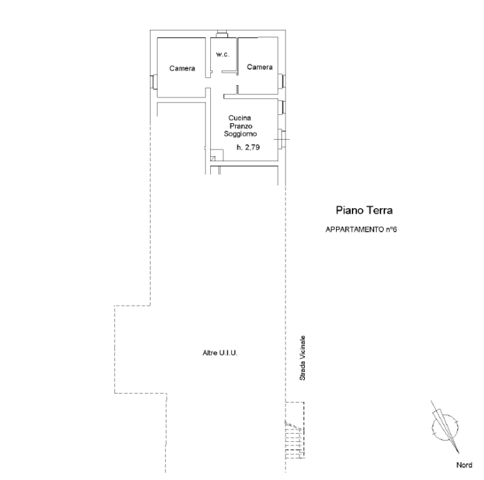
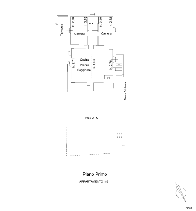
Situato nel Comune di Nocera Umbra, in località Santa Maria di Lignano all'interno del Parco del Monte Subasio, il fabbricato "Bandita 1" è una struttura residenziale di tre piani fuori terra per una superficie lorda di circa 736 m². L'immobile, ristrutturato negli anni ’90, è attualmente suddiviso in otto unità abitative indipendenti. Ogni appartamento è predisposto con impianti autonomi (idrico, elettrico, termico). La proprietà si inserisce in un pregevole contesto naturalistico ed è ideale per un utilizzo ricettivo o residenziale diffuso.

Vocabolo Bandita , SNC - 06025 Nocera Umbra (PG)

Dettagli

Tipologie immobile
Altre tipologie
Funzioni ammesse
Turistico ricettivo
Superficie territoriale (m²)
3.091 m²
SLP Totale (m²)
Stato manutentivo
Mediocre
Stato occupazionale
Libero

Immerso nella tranquillità del Parco del Monte Subasio, il complesso residenziale “Bandita 1” rappresenta un’eccezionale opportunità di investimento per chi desidera avviare una struttura ricettiva diffusa o un rifugio esclusivo nel cuore verde dell’Umbria. Situata nel Comune di Nocera Umbra, questa struttura si sviluppa su vari livelli fuori terra, offrendo una generosa superficie lorda complessiva di oltre 730 m².
L’edificio è stato oggetto di una ristrutturazione ed è oggi articolato in otto appartamenti indipendenti. Questa conformazione rende l’immobile estremamente versatile e adatto ad accogliere ospiti o ad essere trasformato in un suggestivo residence di campagna. Ciascuna unità abitativa è già stata predisposta con un’impiantistica autonoma. L’immobile necessità di importanti lavori di ristrutturazione ordinaria e straordinaria.
“Bandita 1” è la tela ideale per intercettare i crescenti flussi del turismo naturalistico e spirituale, offrendo ai futuri visitatori un’oasi di pace incontaminata, con ampi margini di personalizzazione per creare un’esperienza di soggiorno autentica e indimenticabile.

L’immobile sorge nel territorio del Comune di Nocera Umbra, all’interno dell’incantevole cornice naturale del Parco del Monte Subasio, in località Santa Maria di Lignano. L’area, tutelata come zona agricola di salvaguardia ambientale, offre un paesaggio intatto di boschi e colline, ideale per il turismo escursionistico e all’aria aperta. Il complesso si raggiunge agevolmente da Valtopina percorrendo la strada provinciale 4 (ex Flaminia) si giunge allo svincolo per Villa di Postignano, per poi proseguire lungo una caratteristica e tranquilla strada vicinale che conduce direttamente alla proprietà.

Abitazione - PIANI FUORI TERRA (3)
736,55 mq

Situato nel Comune di Nocera Umbra, in località Santa Maria di Lignano all'interno del Parco del Monte Subasio, il fabbricato "Bandita 1" è una struttura residenziale di tre piani fuori terra per una superficie lorda di circa 736 m². L'immobile, ristrutturato negli anni ’90, è attualmente suddiviso in otto unità abitative indipendenti. Ogni appartamento è predisposto con impianti autonomi (idrico, elettrico, termico). La proprietà si inserisce in un pregevole contesto naturalistico ed è ideale per un utilizzo ricettivo o residenziale diffuso.

Procedure

Vendita della piena proprietà con bando pubblico

Vocabolo Bandita , SNC - 06025 Nocera Umbra (PG)

Contatto

ICE - Italian Trade Agency

Richiedi informazioni

Pianta principale

Nocera Umbra (PG) – Bandita 1 Pianta principale