Siete già iscritti? /

Palermo (PA) – Palazzo della Zecca – Niscemi

Palazzo della Zecca, situato nel cuore del centro storico di Palermo tra Piazza Marina, Salita dell’Intendenza e Vicolo Niscemi, è un imponente edificio del XVII secolo caratterizzato da una pianta quadrangolare con corte interna e loggiato. Storico bene culturale, oggi sede di uffici pubblici, si distingue per la posizione strategica, la connessione con Palazzo Niscemi e il forte valore architettonico-identitario nel contesto urbano

Piazza Marina, Salita Intendenza, 2 - 90133 Palermo (PA)

Dettagli

Tipologie immobile
Edificio storico, Edificio cielo/terra
Funzioni ammesse
Altre funzioni, Commerciale, Direzionale
Superficie territoriale (m²)
3.384 m²
SLP Totale (m²)
GLA totale
Contratti e vincoli

L’immobile è attualmente occupato da Amministrazioni dello Stato, che lo detengono in uso governativo.
Soltanto alcuni spazi ubicati al piano terra, nonché le superfici presenti all’ultimo piano e l’eventuale roof garden, potranno essere concessi a privati nell’ambito di un’operazione di Partenariato Pubblico-Privato (PPP).

Anno di costruzione
1700 circa
Stato manutentivo
Buono
Stato occupazionale
Occupato
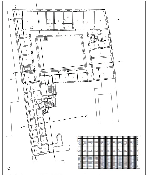
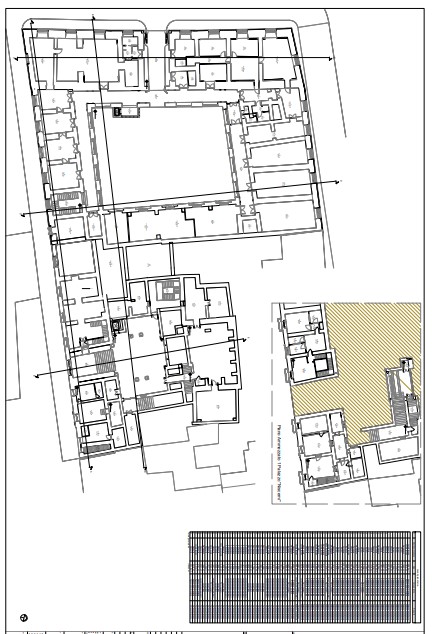
Il compendio immobiliare è costituito dai Palazzi della Zecca e Niscemi, due edifici storici contigui situati nel cuore del centro antico di Palermo, all’interno del mandamento Tribunali–Kalsa. Il Palazzo della Zecca, edificato nel 1699, si sviluppa su sei livelli fuori terra con struttura in muratura portante e corte interna, mentre il Palazzo Niscemi, di impianto originario antecedente al 1700, presenta cinque elevazioni fuori terra e un piano ammezzato. Entrambi gli immobili sono cielo‑terra e risultano interessati da trasformazioni edilizie stratificate nel corso dei secoli, che ne caratterizzano la morfologia e il sistema dei collegamenti verticali. L’attuale destinazione d’uso è prevalentemente terziario‑direzionale e gli immobili sono interamente occupati da Amministrazioni dello Stato che li detengono in uso governativo. Il compendio ricade nell’ambito del PPE del Centro Storico, dove Palazzo della Zecca è classificato tra gli Edifici Specialistici Civili Pubblici e Palazzo Niscemi tra i Palazzi, con possibilità di interventi di restauro, ripristino e ristrutturazione compatibile. In un’ottica di valorizzazione, alcuni spazi collocati al piano terra, le superfici poste all’ultimo livello e il futuro roof garden possono essere destinati ad attività culturali, ricreative o di fruizione pubblica, anche attraverso operazioni di partenariato pubblico‑privato finalizzate all’apertura del complesso alla città.
Il compendio è situato nel centro storico di Palermo, all’interno del mandamento Tribunali–Kalsa, in un’area urbana di elevato pregio storico‑monumentale. Gli immobili affacciano su Piazza Marina e si trovano in prossimità di importanti luoghi di interesse quali Palazzo Chiaramonte‑Steri, Palazzo Abatellis, Palazzo Butera, la Galleria d’Arte Moderna e il Foro Italico. L’area è servita da una fitta rete viaria urbana, con collegamenti verso via Vittorio Emanuele, via Lincoln e il porto della Cala. Sono presenti fermate del trasporto pubblico locale e collegamenti con la stazione centrale di Palermo, situata a breve distanza. Il contesto è caratterizzato da funzioni miste culturali, amministrative e residenziali, con elevata accessibilità pedonale.
piano terra
2630 m²
piano primo
2630 m²
piano secondo
2630 m²
piano terzo
2080 m²
piano quarto
2080 m²
piano quinto
1175 m²

Palazzo della Zecca, situato nel cuore del centro storico di Palermo tra Piazza Marina, Salita dell’Intendenza e Vicolo Niscemi, è un imponente edificio del XVII secolo caratterizzato da una pianta quadrangolare con corte interna e loggiato. Storico bene culturale, oggi sede di uffici pubblici, si distingue per la posizione strategica, la connessione con Palazzo Niscemi e il forte valore architettonico-identitario nel contesto urbano

Questo immobile fa parte del progetto:

Procedure

Partenariato pubblico privato - Project Financing

Piazza Marina, Salita Intendenza, 2 - 90133 Palermo (PA)

Contatto

ICE - Italian Trade Agency

Richiedi informazioni

Pianta principale

Palermo (PA) – Palazzo della Zecca – Niscemi Pianta principale