Siete già iscritti? /

Roma (RM) – Teatro “Salone Margherita”

Il Teatro Salone Margherita occupa una porzione longitudinale dell'edificio realizzato nella seconda metà del XIX secolo, situato all’angolo tra Via dei Due Macelli e Via di Capo le Case, all’interno del Rione IV Campo Marzio in prossimità del confine con il Rione III Colonna e nel territorio del I Municipio.
E’ ubicato ai nn. 74-75 di via Due Macelli, è costituito da tre piani fuori terra e un piano seminterrato.

Via Due Macelli, 74-75 - 00187 Roma (RM)

Dettagli

Tipologie immobile
Edificio storico, Altre tipologie
Funzioni ammesse
Altre funzioni
Superficie territoriale (m²)
1.082 m²
SLP Totale (m²)
Anno di costruzione
1889
Stato manutentivo
Buono
Stato occupazionale
Libero

Preceduto da una caffetteria e aperto verso il 1889 da G.B. Sommariva col nome di “Teatro delle Varietà”, il teatro fu affidato in gestione alla ditta assuntrice dei fratelli Igino e Carlo Marino, gli imprenditori teatrali napoletani che nel 1890 avevano inaugurato il Salone Margherita anche a Napoli, allestito nel cuore della Galleria Umberto I. Il “Teatro delle Varietà” si insediò nell’area di un edificio industriale che era stato sede della prima fabbrica romana di Birra Peroni. In seguito al trasferimento del birrificio, al posto dell’opificio sorse il palazzo di proprietà della Banca d’Italia che inglobava al piano terra il Teatro, presto trasformato in “Salone Margherita” in omaggio a Margherita di Savoia, prima regina del Regno d’Italia.

L’ininterrotta affluenza di pubblico, e quindi la necessità di aumentare la capienza e fornire al contempo migliori prestazioni sceniche, motivarono nel 1908 la scelta di ingrandire il Teatro, ricavare una galleria e sostituire la pedana con un palcoscenico, calcato tra gli altri in quegli anni da Ettore Petrolini, il quale si esibì sulle tavole di via Due Macelli per venticinque stagioni teatrali – Leopoldo Fregoli, Raffaele Viviani.

Segno dell’interesse, e della frequentazione, degli artisti per questo luogo di intrattenimento è manifestato anche da Giacomo Balla, che nel 1903-1904 dipinge Grande serata nera al Caffè Margherita (Firenze, coll. Privata).

Il Salone Margherita divenne il palcoscenico più lussuoso della capitale per il suo ambiente aristocratico, gli stucchi, gli ori e gli specchi, i palchi, la galleria e la platea con le poltrone di velluto rosso e conobbe anni esaltanti in coincidenza con la diffusione dei principi estetici e lo stile di vita della belle époque.

Esso ha rappresentato il teatro di varietà – il café chantant nato a Parigi al Mouline Rouge e alle Folies Bergères – nell’accezione italiana di “caffè-concerto” fino alla seconda guerra mondiale, quando al posto del varietà subentrò il genere della rivista e del cosiddetto avanspettacolo.

Dopo un periodo di utilizzo come sala cinematografica, il Salone Margherita nel 1972 è tornato alla sua destinazione originaria con l’installazione della compagnia de “Il Bagaglino”, con spettacoli di intrattenimento satirico di grande successo, con testi molto spesso, se non addirittura esclusivamente, declinati in dialetto romanesco, ripristinando il sistema delle pedane in mezzo ai tavolini dei caffè per il consumo di cibi e bevande nel corso degli spettacoli, ripresi in diretta differita dalla R.A.I. e poi da Mediaset.

Attualmente l’immobile ha la destinazione d’uso D/3: teatri, cinematografi , sale per concerti e spettacoli e simili (con fine di lucro) e può ospitare circa 380/450 posti.

L’immobile risulta vincolato ai sensi del D.Lgs. 42/2004.

L’immobile è situato nel Centro Storico più esclusivo della Città (Sito Unesco), nelle vicinanze di Piazza di Spagna-Scalinata di Trinità dei Monti. Nella zona sono presenti le più importanti sedi istituzionali tra i quali Palazzo del Quirinale, Montecitorio e Palazzo Chigi, nonché numerosi edifici e monumenti di interesse storico-artistico quali la Basilica Sant’Andrea delle Fratte, la Fontana di Trevi, il Mausoleo di Augusto e l’Ara Pacis, il Pantheon, il Tempio di Adriano, nonché i principali percorsi commerciali tra cui Via Condotti, Via del Corso, Via Frattina, Via del Tritone/Piazza Barberini.

Sito nella zona a traffico limitato, è raggiungibile tramite Metro Linea A fermate Piazza di Spagna – Barberini  e con il servizio di trasporto pubblico.

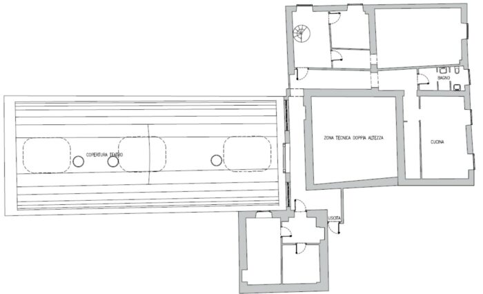
Piano Seminterrato
439,01
Piano Terra
1081,82
Piano Primo
760,90
Piano Secondo
221,92

Il Teatro Salone Margherita occupa una porzione longitudinale dell'edificio realizzato nella seconda metà del XIX secolo, situato all’angolo tra Via dei Due Macelli e Via di Capo le Case, all’interno del Rione IV Campo Marzio in prossimità del confine con il Rione III Colonna e nel territorio del I Municipio.
E’ ubicato ai nn. 74-75 di via Due Macelli, è costituito da tre piani fuori terra e un piano seminterrato.

Via Due Macelli, 74-75 - 00187 Roma (RM)

Contatto

ICE - Italian Trade Agency

Richiedi informazioni

Pianta principale

Roma (RM) – Teatro “Salone Margherita” Pianta principale