The building is of modern construction and is situated between the hill of San Giusto, near the Church of Montuzza, and Via Pondares, a side street off Largo Barriera. The property therefore enjoys a central location, set at a slightly elevated position above sea level.
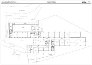
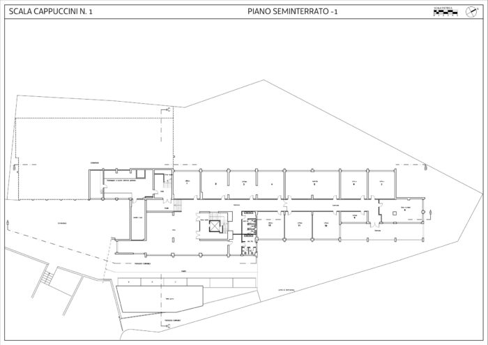
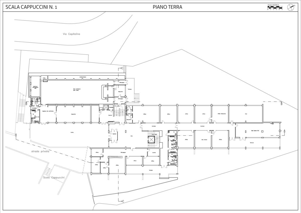
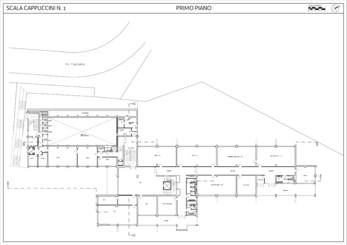
The building, constructed in reinforced concrete, extends over nine above-ground floors across two different elevation levels: access to the entrance in Via Capitolina is via a short descending stairway, while the main entrance from Via Pondares is reached via a short ascending stairway.
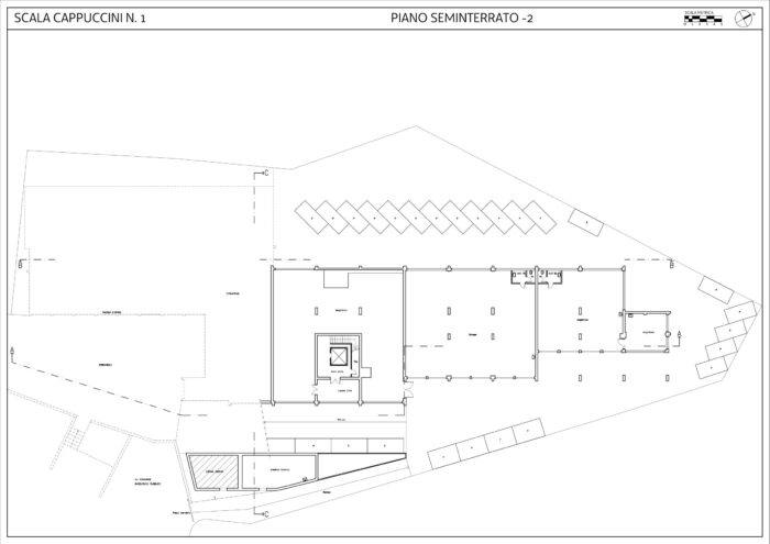
Vehicular access to the covered parking area is also in Via Capitolina. The complex is completed by two semi-basement levels, partially used for parking.
The building formerly served as the headquarters of IRFOP (Regional Vocational Training Institute) and is still used for training activities by the Regional Authority. It is currently fitted out with spaces suitable for use as classrooms and teaching facilities.
The structure features a highly rational internal layout, includes garage facilities and parking spaces, and is located in the immediate vicinity of Castello di San Giusto — an area otherwise characterised by a significant shortage of parking availability.
The entire surrounding area is set within green spaces and benefits from exceptional tranquillity.
Elevators: the building is served by two elevators.
Parking: garage facilities of approximately 250 sqm, plus additional parking spaces within the external grounds.
Restrictions: none.
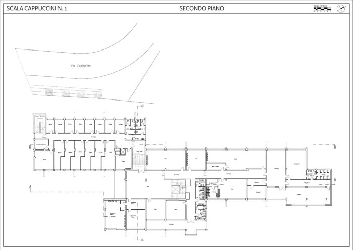
Current use: regional government offices and premises granted under concession to regional entities and various associations.

Distance to the railway station: less than 25 minutes on foot or approximately 10 minutes by bus. Distance to the Maritime Station (cruise terminal): 20 minutes on foot or 8 minutes by car.