Are you a member? /

Trieste (TS) – Property in Via del Lavatoio, 1

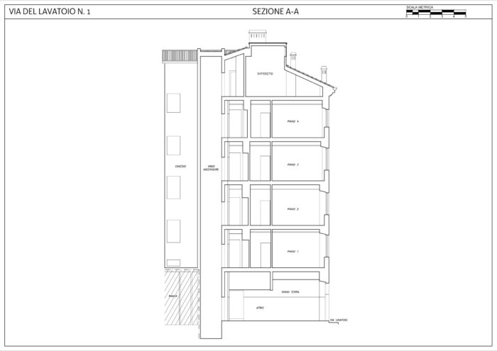
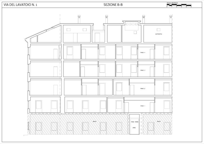
The building consists of six stores above ground. The property includes the first floor up to the attic and is used as office space.

Via del Lavatoio, 1 - 34133 Trieste (TS)

Details

Property types
Historical building
Permitted uses
Commercial, Office, Parking Area, Residential, Healthcare/Senior Housing, SPA/Wellness, Sport, leisure, events, Student House, Hotel and leisure
Land area (m²)
430 m²
Total GIA (m²)
Total GLA
State of maintenance and repair
Excellent
Occupation status
Occupied Asset

The building consists of six stores above ground. The property includes the first floor up to the attic and is used as office space.
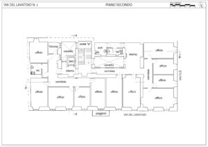
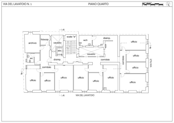
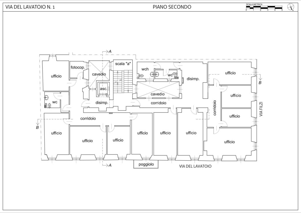
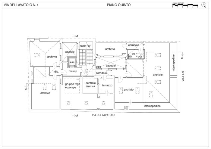
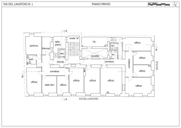
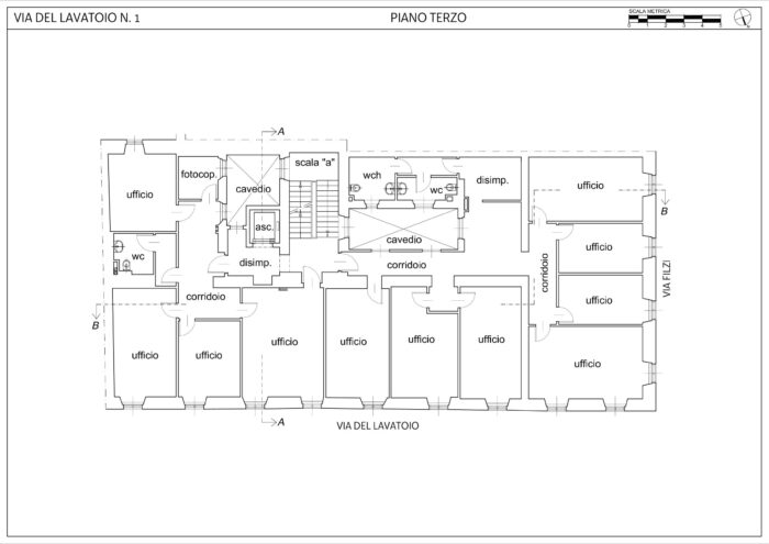
The floor plans across the five levels have a rational layout organized around a central corridor accessed via the main staircase located in the centre; the rooms currently used as offices open onto this corridor.
In the central part of the building there are also two small lightwells.

The building initially served a residential purpose, but it was later adapted for offices by the regional administration.
The property underwent a major renovation in the 1980s and extraordinary maintenance in the early 2000s.
The building is equipped with an elevator.

Parking: there are no dedicated parking spaces.

Restrictions: the property has no cultural heritage restrictions.

Current use: offices of the Regional Government

 

Distance from the train station: less than a 10-minute walk.
Distance from the Maritime Station (cruise terminal): 15-minute walk or 5 minutes by car.

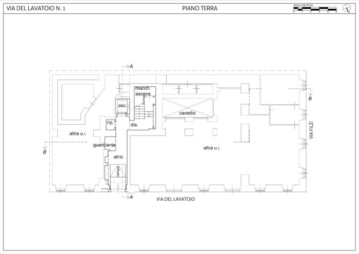
GROUND FLOOR - ENTRANCE
57,6 mq
FIRST FLOOR - OFFICES
166 mq
FIRST FLOOR – MEETING ROOMS
16,3 mq
FIRST FLOOR - ARCHIVE
19,4 mq
SECOND FLOOR - OFFICES
427,3 mq
THIRD FLOOR - OFFICES
427,3 mq
FOURTH FLOOR - OFFICES
407,6 mq
FOURTH FLOOR - ARCHIVE
19,6 mq
ATTIC - OFFICES
230,5 mq
ATTIC - ARCHIVE
196,8 mq

The building consists of six stores above ground. The property includes the first floor up to the attic and is used as office space.

This property is part of the project:

Procedure

Public Tender Sale of full Ownership

Via del Lavatoio, 1 - 34133 Trieste (TS)

Contact

ICE - Italian Trade Agency

Request info

Floorplan

Trieste (TS) – Property in Via del Lavatoio, 1 Floorplan