Are you a member? /

Trieste (TS) – Property at Via San Francesco, 37

The building is of modern architectural design and was developed in nine construction lots, of which only four are owned by the Regional Authority. Construction was completed in 1975, and the building was formally certified the following year.

Via San Francesco, 37 - 34133 Trieste (TS)

Details

Property types
Free-standing building
Permitted uses
Commercial, Office, Parking Area, Residential, Hotel and leisure
Land area (m²)
2,676 m²
Total GIA (m²)
Total GLA
Year of construction
1974
State of maintenance and repair
Excellent
Occupation status
Occupied Asset

The structure is built in reinforced concrete and develops on seven above-ground floors and a basement used as a garage.

The property is located in the immediate vicinity of the public gardens of Via Giulia.

Recent renovations: extraordinary maintenance works carried out in 2021.

Elevators: the building is served by three elevators and one goods lift.

Parking: basement garage with approximately forty parking spaces.

Restrictions: the property is not subject to any cultural heritage constraints.

Current use: regional government offices.

       

Distance to the railway station: less than 20 minutes on foot or approximately 10 minutes by public transport.

Distance to the Maritime Station (cruise terminal): 25 minutes on foot or 10 minutes by car.

Basement – Archive
241 mq
Basement – Parking
1175 mq
Ground Floor – Offices
1629 mq
First Floor
852 mq
Second Floor
852 mq
Third Floor
852 mq
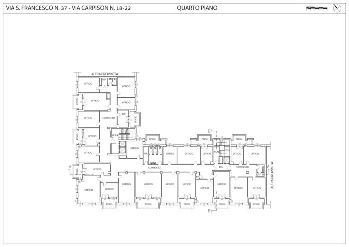
Fourth Floor
852 mq
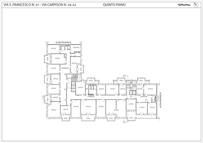
Fifth Floor
852 mq
Sixth Floor
673 mq

The building is of modern architectural design and was developed in nine construction lots, of which only four are owned by the Regional Authority. Construction was completed in 1975, and the building was formally certified the following year.

This property is part of the project:

Procedure

Public Tender Sale of full Ownership

Via San Francesco, 37 - 34133 Trieste (TS)

Contact

ICE - Italian Trade Agency

Request info

Floorplan

Trieste (TS) – Property at Via San Francesco, 37 Floorplan