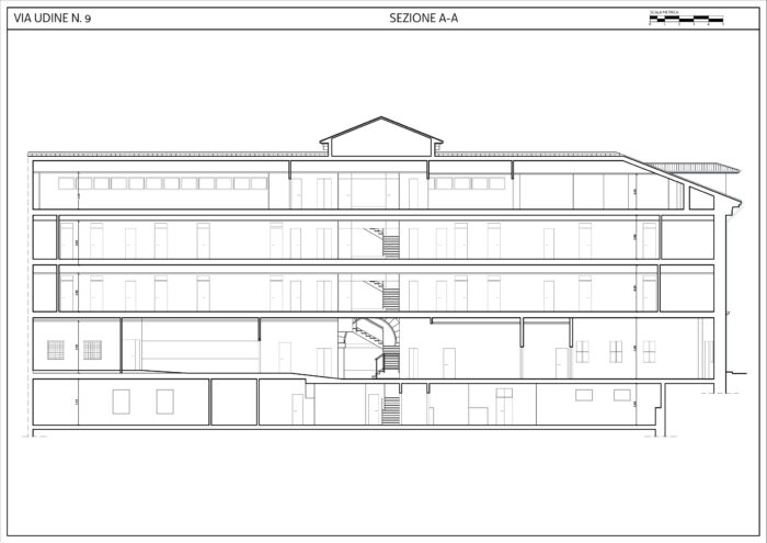
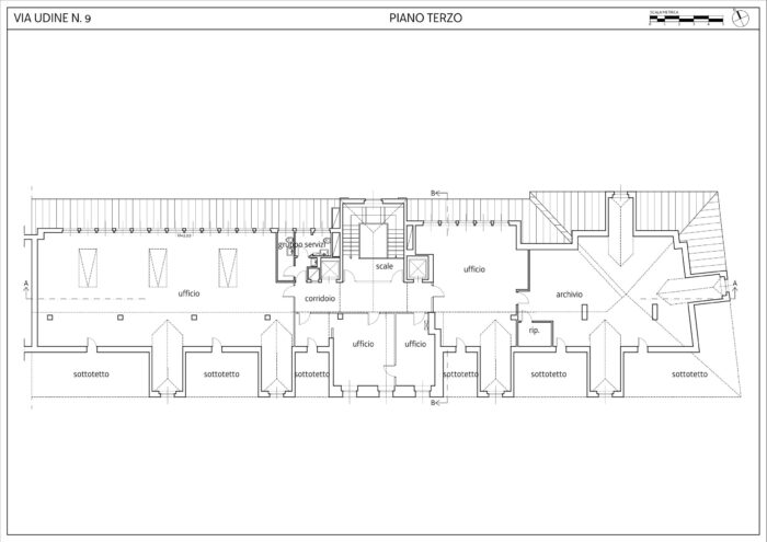
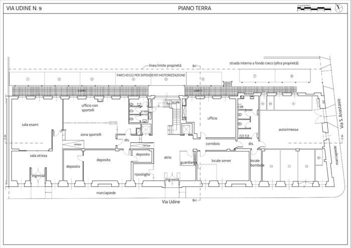
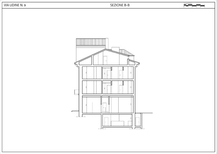
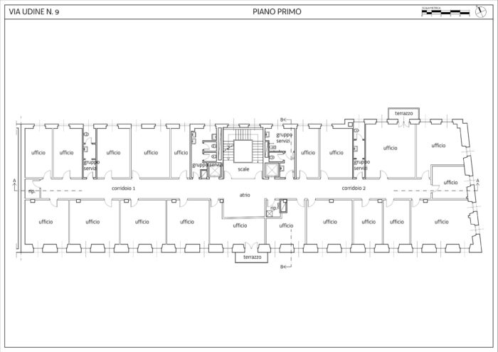
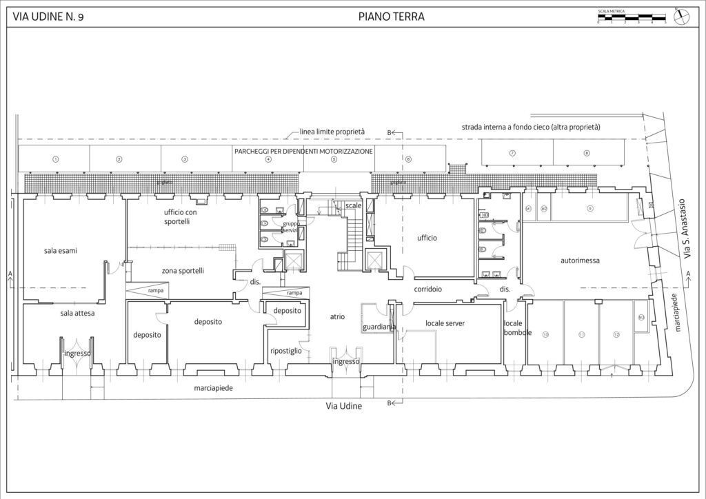
The property, currently designated for office use, stands on a large area of 824 sqm, of which 654 sqm are occupied by the building itself and 170 sqm used as a courtyard. It is composed of three above-ground floors, a basement, and an attic floor. It is located at Via Udine 9, a street running parallel to Viale Miramare, near Trieste Central Railway Station.
The building stands on a large area of 824 sqm, of which 654 sqm are occupied by the building itself and 170 sqm are used as a courtyard. It consists of three above-ground floors, a basement level, and an attic floor. It is located at Via Udine 9, a street running parallel to Viale Miramare, in the vicinity of Trieste Central Railway Station.
The building is in good structural and maintenance condition and has recently undergone refurbishment and conservation works.
Recent renovations: a major refurbishment was carried out in the 1980s, with further extraordinary maintenance works completed in 2019 and 2021.
The building is served by two elevators.
Parking: the property includes a covered car park with nine designated spaces, plus additional open-air parking spaces within the external grounds.
Distance to the railway station: less than 5 minutes on foot.
Distance to the Maritime Station (cruise terminal): 20 minutes on foot or 5 minutes by car.
Restrictions: the property has been declared of significant cultural and historical interest pursuant to Articles 1 and 2 of Law 1089/39, by notice dated 08/03/1967. A subsequent notice dated 17/07/1968 specifies that the heritage constraint is limited to the main façade and the elevation facing Via Sant’Anastasio.

The property is situated in a central area of Trieste, near the main railway station. All essential services are available in the immediate surroundings.