Siete già iscritti? /

Como (CO) – Teatro Politeama

Compendio immobiliare a tre piani con annessa area di pertinenza. L’immobile è stato edificato nell'anno 1910, inizialmente adibito alla rappresentazione di spettacoli di vario genere. E' situato in zona centrale, all’angolo tra Via Felice Cavallotti e Via Tolomeo Gallio, fronte Piazza Cacciatori delle Alpi, immediatamente all’esterno del centro storico pedonalizzato, in posizione centrale e ben servita. Oltre al teatro, esso è composto da ulteriori ambienti tra cui locali già adibiti a bar/ristorante e albergo e anche unità abitative. L’edificio risulta in disuso da diversi decenni.

Viale Cavallotti, 1 - 22100 Como (CO)

Dettagli

Tipologie immobile
Edificio storico
Funzioni ammesse
Altre funzioni, Commerciale, Residenziale, Sport, tempo libero, eventi, Turistico ricettivo
Superficie territoriale (m²)
1.062 m²
SLP Totale (m²)
Anno di costruzione
1910
Stato manutentivo
Mediocre
Stato occupazionale
Libero

L’immobile è stato edificato nell’anno 1910 su progetto dell’architetto Federico Frigerio e rientra nella tipologia edilizia dei Politeama ovverosia edifici teatrali a carattere ibrido adibiti alla rappresentazione di spettacoli vari.
L’immobile è situato in zona centrale, all’angolo tra Via Tolomeo Gallio e Viale Felice Cavallotti, fronte Piazza Cacciatori delle Alpi, immediatamente all’esterno del centro storico pedonalizzato, in posizione centrale e ben servita ed è costituito dai seguenti ambienti:
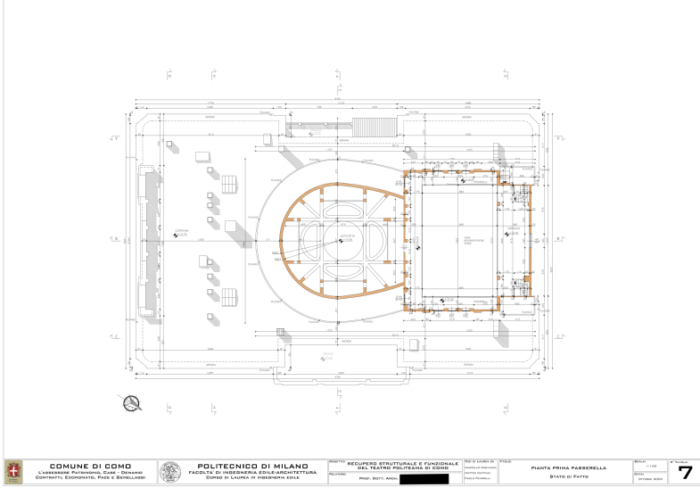
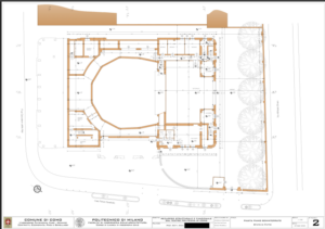
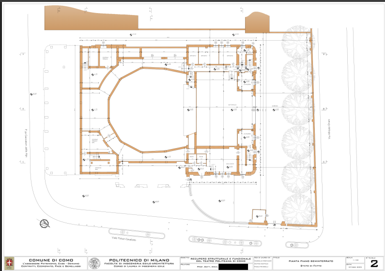
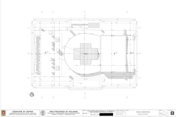
– teatro;
– sottopalco, locali accessori, disimpegni, al piano primo sottostrada;
– bar, ristorante, cucina e disimpegno al piano terreno;
– locali un tempo destinati ad albergo e relativi vani accessori ai piani primo e secondo;
– n. 3 unità abitative ai piani primo, secondo e terzo.

Il bene, sorto come teatro popolare e adibito a teatro, caffè, ristorante, albergo, è attualmente in disuso; le destinazioni previste dall’attuale Piano di Governo del Territorio (PGT) sono coerenti con quelle originarie; il bene necessita di opere di restauro e rifunzionalizzazione per poter essere restituito alla fruizione pubblica ed evitare ulteriore degrado e perdita degli elementi di interesse architettonico e storico artistico;

Il Teatro Politeama è situato nel centro storico di Como, a poca distanza dalle mura storiche della città e dalla Piazza Cacciatori delle Alpi. L’area fa parte del centro urbano storico, zona mista residenziale e commerciale, caratterizzato da vie urbane strette, edifici tradizionali e una forte densità di servizi, negozi e strutture culturali. È molto vicino ad altri punti di interesse cittadini, tra cui la chiesa di Santa Maria di Loreto.

La sua posizione relativamente centrale lo inserisce in un contesto facilmente raggiungibile a piedi da molte aree del centro città, dal lungolago e dalle principali piazze.

Nelle immediate vicinanze ci sono fermate di autobus urbani e regionali che connettono la città con i paesi e le località più piccole del circondario. Le stazioni ferroviarie più vicine sono Como San Giovanni (10-12 minuti a piedi dal Politeama), con collegamenti frequenti verso Milano e verso la Svizzera attraverso Chiasso, e Como Nord Lago (15-20 minuti a piedi). L’Autostrada A8 è la principale arteria autostradale che collega Milano a Como (45-50 km di distanza).

Blocco a tre piani
4403 m²

Compendio immobiliare a tre piani con annessa area di pertinenza. L’immobile è stato edificato nell'anno 1910, inizialmente adibito alla rappresentazione di spettacoli di vario genere. E' situato in zona centrale, all’angolo tra Via Felice Cavallotti e Via Tolomeo Gallio, fronte Piazza Cacciatori delle Alpi, immediatamente all’esterno del centro storico pedonalizzato, in posizione centrale e ben servita. Oltre al teatro, esso è composto da ulteriori ambienti tra cui locali già adibiti a bar/ristorante e albergo e anche unità abitative. L’edificio risulta in disuso da diversi decenni.

Viale Cavallotti, 1 - 22100 Como (CO)

Contatto

ICE - Italian Trade Agency

Richiedi informazioni

Pianta principale

Como (CO) – Teatro Politeama Pianta principale