Siete già iscritti? /

Imperia (IM) – Ex filiale Banca d’Italia

Immobile ex filiale della Banca d'Italia, ubicato nella città di Imperia, nella zona storica di Porto Maurizio in Via Felice Cascione. L'immobile, la cui costruzione risale alla metà del 1800, venne completamente ristrutturato nel 1955, per assumere l'attuale conformazione. L'edificio, in virtù della sua localizzazione, ben si presta ad essere adibito ad abitazioni o trasformato in struttura turistico-ricettiva.

Via Felice Cascione, 39 - 18100 Imperia (IM)

Dettagli

Tipologie immobile
Altre tipologie
Funzioni ammesse
Direzionale, Residenziale, Turistico ricettivo
Superficie territoriale (m²)
1.218 m²
SLP Totale (m²)
GLA totale
Numero unità
10
Anno di costruzione
metà 1800
Stato manutentivo
Buono
Stato occupazionale
Libero
Profilo di rischio

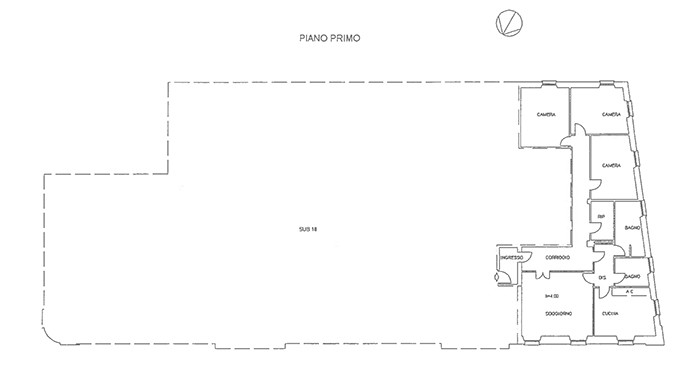
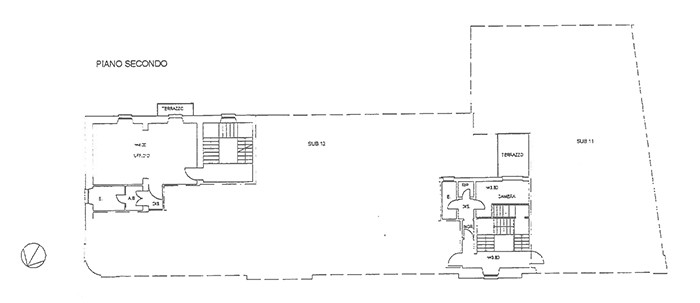
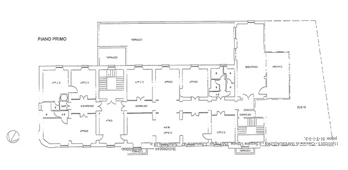
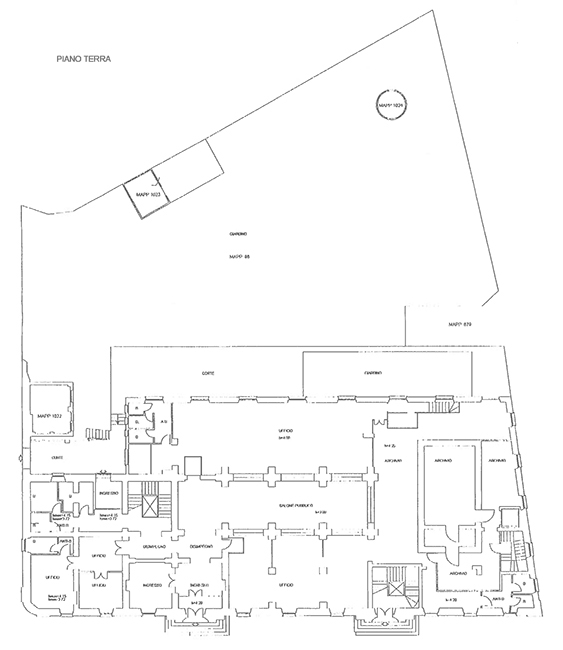
Il compendio immobiliare, edificato a partire dalla seconda metà dell’800, è stato completamente ristrutturato negli anni ’50. L’edificio presenta una conformazione planimetrica a forma di “L” e risulta articolato su tre piani fuori terra oltre ad un livello parzialmente seminterrato, dovuto alla notevole pendenza di Via del Cascione, su cui si sviluppa il fronte principale dello stabile. L’immobile, libero sui quattro lati, è dotato di quattro ingressi indipendenti, uno dei quali localizzato nella parte retrostante, dotato di passo carrabile che consente l’accesso all’autorimessa, ad uso esclusivo della ex filiale. La destinazione d’uso prevalente dell’immobile è Istituto di Credito, ma al suo interno si trovano unità immobiliari di servizio destinate ad abitazioni, soffitte, locali per esercizi sportivi senza fine di lucro, e locali tecnici. Sempre nella parte retrostante dell’edificio si trova un importante giardino “a terrazza” di pertinenza esclusiva dell’immobile. L’edificio, attualmente libero, si trova in buone condizioni di manutenzione, ed è dotato di 2 corpi scala e due impianti di sollevamento, a servizio dell’istituto di credito e delle abitazioni.

L’immobile è situato nella città di Imperia (42.034 abitanti), capoluogo dell’omonima Provincia (215.244), nella Regione Liguria (1.571.053 abitanti), nella zona storica di Porto Maurizio, nelle immediate vicinanze del Duomo e del Porto Turistico. La zona in cui è ubicato l’immobile presenta una buona accessibilità veicolare ed una buona dotazione di mezzi pubblici. Il Casello “Imperia ovest” dell’Autostrada A-10 (autostrada dei Fiori) che collega Savona con il confine di Stato di Ventimiglia, si trova a 2 km circa dall’immobile, mentre la SS-1 Aurelia attraversa la città in prossimità della zona. La città di Sanremo dista 30 km dalla città, Savona 75 km, Genova 123 km, Nizza (Francia) 78 km, mentre il Principato di Monaco si trova a 66 km circa dalla zona. La stazione FS di Porto Maurizio dista 1,7 km dall’immobile. L’aeroporto internazionale “Cristoforo Colombo” di Genova dista 114 km dalla città.

Immobile ex filiale della Banca d'Italia, ubicato nella città di Imperia, nella zona storica di Porto Maurizio in Via Felice Cascione. L'immobile, la cui costruzione risale alla metà del 1800, venne completamente ristrutturato nel 1955, per assumere l'attuale conformazione. L'edificio, in virtù della sua localizzazione, ben si presta ad essere adibito ad abitazioni o trasformato in struttura turistico-ricettiva.

Via Felice Cascione, 39 - 18100 Imperia (IM)

Contatto

ICE - Italian Trade Agency

Richiedi informazioni

Pianta principale

Imperia (IM) – Ex filiale Banca d’Italia Pianta principale