Siete già iscritti? /

Trieste (TS) – Palazzo Reinelt

La Casa Reyer-Reinelt, progetto dell'architetto Ruggero Berlam, è situata tra Via Gioacchino Rossini 6, Via Nicolò Machiavelli 5 e Via Trento 2. Oggi del palazzo originale rimane solamente il portone settecentesco posto in Via Trento.
Ultimo proprietario fu il commerciante di caffè Francesco Taddeo Reinelt, il quale fu il triestino più ricco della fine del 1800.

via Trento , 1 - 34132 Trieste (TS)

Dettagli

Tipologie immobile
Edificio storico, Edificio cielo/terra
Funzioni ammesse
Direzionale, Parcheggio
Superficie territoriale (m²)
714 m²
SLP Totale (m²)
GLA totale
Stato manutentivo
Ottimo
Stato occupazionale
Occupato da proprietà

Palazzo di caratteristiche architettoniche di pregio si affaccia sul Canale Ponterosso, quindi è ubicato nel cuore del centro storico di Trieste a poca distanza da Piazza Unità di Italia.
Si eleva su 7 piani fuori terra, con al piano terra l’ingresso e l’autorimessa e al quinto piano due grandi terrazzi che offrono un bellissimo panorama sulla città e sul Carso.
Le condizioni di manutenzione sono molto buone.
Ascensori: a servizio dell’immobile sono presenti due impianti elevatori.
Parcheggi: di proprietà un’ autorimessa al piano terra con 16 posti auto, con ingresso da via Machiavelli.
Vincoli: sull’immobile è presente il vincolo di interesse culturale ai sensi dell’art. 10 comma 1 del D.LGS. N.42/2004.
Attuale utilizzo: uffici regionali.

 

           

Distanza dalla stazione ferroviaria: meno di 10 minuti a piedi.
Distanza dalla Stazione Marittima (terminal crociere): 15 minuti a piedi o 3 minuti in auto.

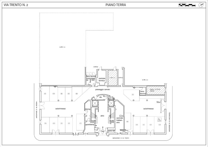
PIANO TERRA AUTORIMESSA
406 mq
PIANO TERRA ATRIO D'INGRESSO
167 mq
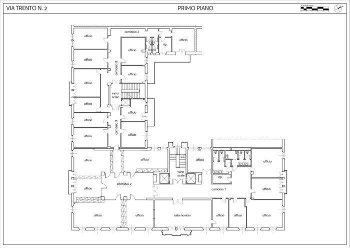
PIANO PRIMO UFFICI
910 mq
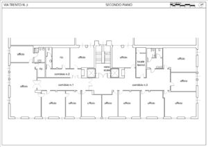
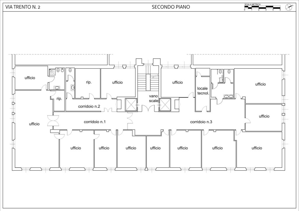
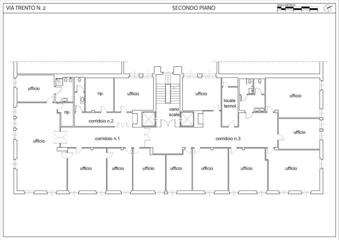
PIANO SECONDO UFFICI
569 mq
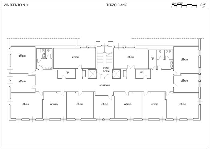
PIANO TERZO UFFICI
569 mq
PIANO QUARTO UFFICI
569 mq
PIANO QUINTO UFFICI
430 mq
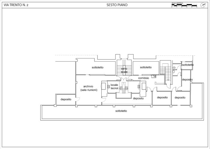
PIANO SOTTOTETTO UFFICI
213 mq
PIANO SOTTOTETTO ARCHIVIO
89 mq

La Casa Reyer-Reinelt, progetto dell'architetto Ruggero Berlam, è situata tra Via Gioacchino Rossini 6, Via Nicolò Machiavelli 5 e Via Trento 2. Oggi del palazzo originale rimane solamente il portone settecentesco posto in Via Trento.
Ultimo proprietario fu il commerciante di caffè Francesco Taddeo Reinelt, il quale fu il triestino più ricco della fine del 1800.

Questo immobile fa parte del progetto:

Procedure

Vendita della piena proprietà con bando pubblico

via Trento , 1 - 34132 Trieste (TS)

Contatto

ICE - Italian Trade Agency

Richiedi informazioni

Pianta principale

Trieste (TS) – Palazzo Reinelt Pianta principale