Are you a member? /

Trento (TN) – Complex in via Sanseverino

The complex, once used as Enel's operational headquarters, is made up of several buildings of different ages.
The lot, defined by a perimeter of buildings, some of which border the area, is located in Trento, south of the former Michelin plant. The area is bordered by the Palazzo delle Albere/MUSE/private lot to the north, a supermarket and the railway power plant to the east, the public parking lot and Via Monte Baldo to the south, and the Adige riverside street to the west.

Research conducted in the municipal archives reveals that the complex received its first building permit in 1956. However, given the age of the buildings, the dating of the first nucleus remains uncertain. Therefore, before any maintenance work or transfers, the existence of historical and cultural interest must be verified with the Provincial Superintendency.

Via Roberto da Sanseverino - 38123 Trento (TN)

Details

Property types
Areas in transformation
Permitted uses
Other Functions, Commercial, Office
Land area (m²)
16,000 m²
Total GIA (m²)
Year of construction
1956
State of maintenance and repair
Poor - To be valorized
Occupation status
Occupied

The complex, once used as Enel’s operational headquarters, is made up of several buildings of different ages. The lot, defined by a perimeter of buildings, some of which border the area, is located in Trento, south of the former Michelin plant. The area is bordered by the Palazzo delle Albere/MUSE/private lot to the north, a supermarket and the railway power plant to the east, the public parking lot and Via Monte Baldo to the south, and the Adige riverside street to the west.

Research conducted in the municipal archives reveals that the complex received its first building permit in 1956. However, given the age of the buildings, the dating of the first nucleus remains uncertain. Therefore, before any maintenance work or transfers, the existence of historical and cultural interest must be verified with the Provincial Superintendency.

The lot has a total cadastral area of ​​16,552 sqm and is affected by the presence of four overhead power lines that cross the Patrimonio del Trentino property on the southern side and supply power to the nearby RFI transformer station serving the Brenner Railway.

The power line supports are located just outside the property limits.

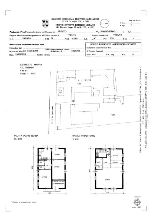
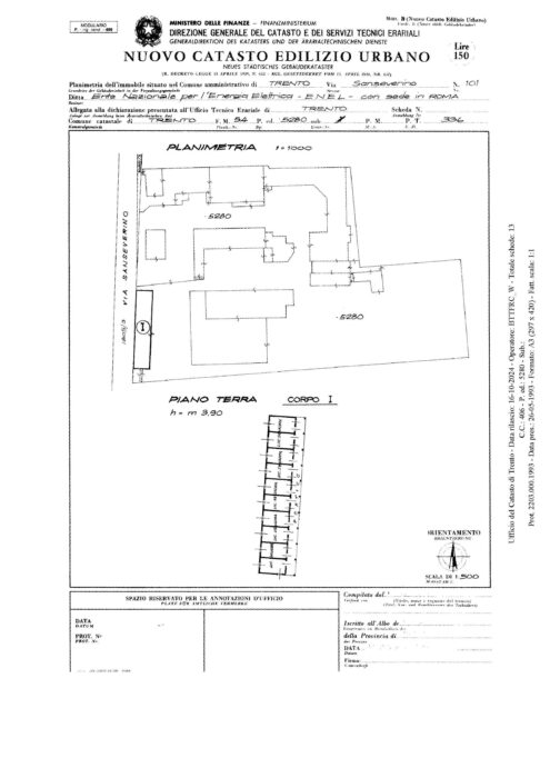
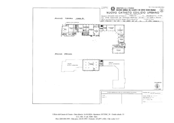
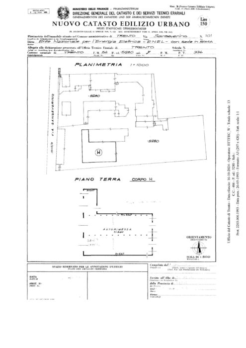
The complex, identified in the Registry as p.ed. 5280 C.C. of the Municipality of Trento, consists of single-storey warehouses, storage and warehouse buildings, and office buildings. The buildings display the typical characteristics of post-WWI production complexes intended for storage/services. Despite the different years of construction, all the buildings exhibit overall characteristics consistent with productive construction aimed at functionality and cost-effectiveness. The buildings have always been used, even though their state of repair is not optimal. This is due both to the urban planning provisions of the Municipality of Trento and to the age of the structures and finishes.

The construction and distribution characteristics of the buildings and their planimetric conformation in relation to urban planning provisions, as well as the environmental constraints imposed by the presence of the four overhead lines, the presence of the power lines and the state of maintenance, lead to the belief that the best development of the area involves the demolition of the existing buildings and the implementation of a comprehensive urban redevelopment project.
To take advantage of the new building potential, a thorough urban planning study is required, along with a verification of the historical and cultural interest. Furthermore, any construction work must respect the safety distance from power lines.

From an urban planning perspective, the area owned by Patrimonio del Trentino is located within the former Michelin Area. The urban planning parameters and permitted uses are those set forth in the Trento Master Plan for C5 Zones, which are areas subject to urban redevelopment.

The Master Plan divides the former Michelin area into three building segments. For each segment, construction is subject to the approval of an implementation plan covering the entire segment.

The Patrimonio del Trentino area is located in segment B. This segment consists of the Patrimonio del Trentino property and two private lots.

No environmental data is available for the area, and therefore the presence or not of any liabilities must be verified. On one of the buildings there is a radio base station.

.

PROPERTY CURRENTLY RENTED TO COMPANIES WITH SHORT-TERM AND/OR EXPIRING CONTRACTS.

The lot, defined by a perimeter of buildings, some of which border the area, is located in Trento, south of the former Michelin plant. The area is bordered by the Palazzo delle Albere/MUSE/private lot to the north, a supermarket and the railway power plant to the east, the public parking lot and Via Monte Baldo to the south, and the Adige riverside street to the west.

From an urban planning perspective, the area owned by Patrimonio del Trentino is located within the former Michelin Area. The urban planning parameters and permitted uses are those set forth in the Trento Master Plan for C5 Zones, which are areas subject to urban redevelopment.

The Master Plan divides the former Michelin area into three building segments. For each segment, construction is subject to the approval of an implementation plan covering the entire segment.

The Patrimonio del Trentino area is located in segment B. This segment consists of the Patrimonio del Trentino property and two private lots.

Block A (total area)
600 m²
Block B (total area)
3300 m²
Block C (total area)
1160 m²
Block D (total area)
345 m²
Block E (total area)
845 m²
Block F (total area)
190 m²
Block G (total area)
295 m²
Block H (total area)
1180 m²
Block I (total area)
430 m²

The complex, once used as Enel's operational headquarters, is made up of several buildings of different ages.
The lot, defined by a perimeter of buildings, some of which border the area, is located in Trento, south of the former Michelin plant. The area is bordered by the Palazzo delle Albere/MUSE/private lot to the north, a supermarket and the railway power plant to the east, the public parking lot and Via Monte Baldo to the south, and the Adige riverside street to the west.

Research conducted in the municipal archives reveals that the complex received its first building permit in 1956. However, given the age of the buildings, the dating of the first nucleus remains uncertain. Therefore, before any maintenance work or transfers, the existence of historical and cultural interest must be verified with the Provincial Superintendency.

Heritage value

www.investinitalyrealestate.com promotes interaction between demand for professional investments. The sale or concession of the property may only take place after the completion of a procedure to verify its heritage interest and/or authorization under Legislative Decree 42 2004 with the Property

Procedure

Public Tender Sale of full Ownership

Via Roberto da Sanseverino - 38123 Trento (TN)

Contact

ICE - Italian Trade Agency

Request info

Floorplan

Trento (TN) – Complex in via Sanseverino Floorplan